Паровой угольный котел 1200 кг в час 115 °С 0.07 МПА в Белгороде
Паровой жаротрубный котел
Удобно размещается в маленьких котельных
Плавная выработка пара даже при подпитке холодной водой, без температурных колебаний
Работает с вентилятором и дымососом
В комплект поставки входит вентилятор, полный комплект запорной арматуры и КИП
Для очистки поверхностей нагрева от сажи остановка котла не требуется
Температура пара до 115 °С, не требует регистрации в Ростехнадзоре
Тип котла | Жаротрубный | Объем паровой части, м³ | 0.53 |
---|---|---|---|
Паропроизводительность, кг/час | 1200 | Аэродинамическое сопротивление, Па (мм. вод. ст.) | 23.8 |
Производительность, т/ч | 1.2 | Тяга | Принудительная |
Тепловая мощность, кВт | 900 | Объем топочной камеры, м³ | 2.97 |
Диапазон регулирования теплопроизводительности, % | 50-100 | Размер топочной камеры, длина*ширина*высота, мм | 2400х1100х1050 |
Топливо | Уголь, Твердое топливо | Активная площадь решетки горения, м² | 2.52 |
Низшая теплота сгорания топлива УГОЛЬ, кКал/кг | 5230 | Присоединительные размеры выхода пара, Ду | 150 |
КПД (УГОЛЬ), не менее, % | 78.6 | Присоединительные размеры по водяному тракту, Ду | 32 |
Расход топлива при максимальной нагрузке котла (УГОЛЬ), кг/ч | 187 | Присоединительные размеры по дымовым газам / диаметр дымовой трубы, мм | 500 |
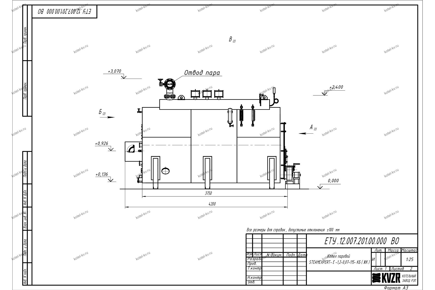
Расход условного топлива, кг/ч | 140 | Габаритные размеры, длина*ширина*высота, мм | 4200*2050*2400 |
Температура пара, °C | 95, 110, 115 | Масса, кг | 4200 |
Избыточное давление пара, не более, МПа | 0.07 | Марка котла | STEAMEXPERT |
Избыточное давление пара, не более, кгс/см² | 0.7 | Энергоэффективность | Высокая |
Избыточное давление пара, не более, бар | 0.7 | Бренд | STEAMEXPERT |
Полный объем котла, м³ | 5.4 |
Это устройство работает со вспомогательным оборудованием, которое приобретается отдельно. Если вы хотите сразу узнать стоимость всей установки, добавьте заинтересовавшие вас позиции в корзину. Чтобы точно расчитать стоимость доставки до вашего объекта, укажите его адрес в корзине и оправьте нам заявку. Обычно мы отвечаем в течение дня.



Паровой котел КП 1200
Паровой котел 1200 пара в час
Колосниковая топка
Изготовление парового котла 1200 кг пара в час
Производство парового котла 1200 кг пара в час
Паровой котел КП 1200 кг пара в час на 115 °С 0.07 МПА/0.7 кгс/см2/ 0.7 бар на твердом топливе угле в Белгороде
Отличительные особенности парового угольного котла STEAMEXPERT КП 1200-0.07-115
- Повышенная надежность конструкции благодаря отсутствию неравномерных температурных расширений в жаровой трубе и трубной части теплообменника
- Стабильная непрерывная выработка пара требуемых параметров при любой нагрузке благодаря большой паросборной камере - до 15 % от общего парового объема
- Отсутствие капель воды в паре благодаря большой поверхности испарения и наличию сепаратора пара
- Высокая скорость образования пара благодаря эффективной трубной системе котла
- Возможность подпитки котла холодной водой +5 °С благодаря большому водяному объему и отсутствию температурных колебаний в трубной системе, работа парогенератора без экономайзера и подогревателя питательной воды
- Эффективная и простая очистка от золы и сажи паром без остановки котла
- Эффективная и простая очистка от выпадающего в процессе работы шлама без остановки парообразования
Устройство и описание
Устройство моделей STEAMEXPERT отличается от твердотопливных паровых котлов 1200 кг пара других производителей – КП-1200, КПр-1200.
Паровой котел STEAMEXPERT 1200 - 0,07-115 на угле – горизонтальный, прямоточный, жаротрубный, состоит из двух жаровых труб. Пространство между обечайками заполняется водой, сверху устанавливается паросборник с сепаратором, в котором собирается образующийся пар. Для получения высокого КПД котла в хвостовой части жаровой трубы устанавливаются конвективные трубы. Снаружи конвективные трубы омываются горячими газами, внутри по ним движется и нагревается вода.
Подача питательной воды производится питательным насосом. В соответствии с ГОСТ для паровых котлов должно быть установлено два насоса, рабочий и резервный.
В котле предусмотрена система дренирования котла от шлама, позволяющая собирать и удалять шлам со всей внутренней поверхности котла без остановки работы. Для очистки парогенератора от сажи предусмотрена встроенная система очистки паром. Чистые поверхности нагрева сохраняют высокое КПД и энергоэффективность работы твердотопливного парового котла КПр-1,2 т -0,07-115 °С на протяжении всего производственного цикла парообразования.
На паросборник устанавливаются 2 предохранительных клапана
Принцип работы парового котла 1.2 т, 0.7 кгс/см2(бар) 115 °С на угле
Твердое топливо сгорает в топке. Горячие газы омывают трубную систему, нагревают воду и производят насыщенный температурой до 115 градусов. При необходимости парогенератор может производить пар меньшей температуры – 95 градусов.
Для горения угля в топку вентилятором подается воздух. Дымовые газы проходят трубную систему и поступают дымовую трубу.
Паровой котел КП 1.2-0.07 МПа на твердом топливе должен быть укомплектован автоматикой. Автоматика ограничивает предельно допустимые параметры работы и давление пара, управляет вентилятором и подпиточным насосом и регулирует уровень воды в барабане. Температура сухого насыщенного пара регулируется изменением давления пара, при необходимости снижения температуры необходимо выставить соответствующее давление пара на электроконтактный манометре. Автоматика парового котла по заданному давлению производит управление дутьевым вентилятором и, следовательно, интенсивностью горения.
Питательная вода для парогенераторов подготавливается в соответствии с требованиями руководства по эксплуатации, «Правилам технической эксплуатации тепловых энергоустановок» и ГОСТ Р 51232-98. Для подбора водоподготовительной установки требуется провести химический анализ воды.
Подключение парового котла 1200 кг с температурой 115 °С давлением 0.07 МПа на угле
Подключение и монтаж производятся по проекту, выполняемому специализированной организацией.
На сайте нашего завода вы можете купить все необходимое вспомогательное оборудование для подключения парового котла 1200 кг 115°С 0.07 МПа на твердом топливе, а также заказать схему подключения в Белгороде.
Безопасность работы
Безопасная эксплуатация обеспечивается выполнением требований
- Инструкции по эксплуатации
- Правил устройства и безопасной эксплуатации паровых котлов с давлением пара не более 0.07 Мпа (0.7 кгс/см2)
- Правил технической эксплуатации тепловых энергоустановок
Требования к помещениям котельной регламентируются СП 89.13331.2016 «Котельные установки»
Угольный паровой котел КП 1.2-0.07–115 °С должен управляться автоматикой безопасности, имеющей сертификат соответствия.
Одним из самых важных устройств, обеспечивающих безопасную эксплуатацию котла, является предохранительный клапан парового котла. Он обеспечивает сброс пара при превышении давления в котле свыше допустимого и предохраняет установку от разрушения. Необходимые условия монтажа и эксплуатации подробно представлены в паспорте и руководстве по эксплуатации.
Подобрать требуемую мощность парового котла для вашего предприятия вы можете по ссылке.
Комплект поставки парообразователя нашего производства
- Котельный блок - 1 шт
- Предохранительный клапан парового котла - 2 шт
- Вентилятор - 1 шт
- Вентили - комплект
- Указатель уровня - 2 шт
- Запорное устройство указателя уровня 2 шт
- Клапан обратный - 1 шт
- Кран трехходовой под манометр- 2 шт
- Манометр - 2 шт
- Чугунные колосники
Дополнительно для подключения вам потребуются
- Питательный насос – 2 шт (рабочий и резервный)
- Автоматика управления - 1 шт
- Водоподготовка (подбирается на основании химического анализа воды)
- Труба дымовая - 1 шт
- Газоходы - комплект
Гарантии изготовителя
Гарантийный срок - 24 месяца со дня ввода в эксплуатацию.
Гарантийное обслуживание включает в себя бесплатное устранение скрытых заводских дефектов, замену деталей и узлов вышедших из строя в период гарантийного срока при условии монтажа и эксплуатации оборудования Покупателем в соответствии с его назначением, технической документацией, техническими нормами, правилами ввода в эксплуатацию и эксплуатации данного оборудования.
Срок эксплуатации парового котла 10 лет.
Купить парового угольного котла 1200 кг/ч 115 °с 0.07 мпа в Белгороде
Котельный завод изготавливает производственные паровые котлы КП 1200. Основные характеристики: паропроизводительность 1200 кг пара в час; температура пара до 115 °С; вид топлива: твердое, уголь, газ, дизель, мазут; давление пара до 0.07 МПа. Промышленные паровые котлы КП 1200 применяются в производстве строительных материалов, производстве бетона, ЖБИ, пищевой, табачной, деревообрабатывающей, легкой промышленности, а так же в медицине, в сельскохозяйственном производстве, и топливном хозяйстве. Наш завод осуществляет производство паровых котлов КП 1200 стандартной комплектации, а так же по техническому заданию заказчика.
комплект